
On the edge of Tallwood Forest at the intersection of two arterial roads (Woodroffe and Tallwood Drive) the new James Bartleman Archives and Library Materials Centre was designed to create a public courtyard linking to a future transit station.

“With a planned Transitway adjacent, this project is a grand gesture to the future, and one that will help transform this suburban setting over time.”
—2011 City of Ottawa Urban Design Awards
The new building houses two separate and complementary functions: A new home to house the City of Ottawa’s archival records and collection of items under the stewardship of the City of Ottawa Central Archives and a new location for the City of Ottawa Public Library Materials Distribution and Collections Development/Technical Services groups.

Four vaults with high-density shelving are environmentally controlled to protect the Archives’ collection of historic photographs, documents, records and artwork Meanwhile, the Library department processes 70 tonnes of books each week through the loading and processing areas for distribution to the City’s 33 public branches.

“I think the designers did a fantastic job of taking the archives out of the backs of people’s minds and making the
building bright and pleasant to use”
—Sheena Sharp, President, OAA (2012)
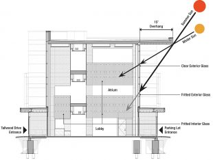
In an initiative to create new energy saving facilities which produce lower greenhouse gas emissions, use less water and other resources, and provide high quality indoor working environments, the City of Ottawa originally mandated that the new facility would be LEED Silver certified. The resulting building achieved LEED Gold and meets the 2030 Challenge for reducing greenhouse gas emissions.

Recognized for its contribution to the urban environment, this new facility makes significant connections between the adjacent neighbourhood, the forest and the future transit station. It provides tangible community benefits and includes striking architectural character to a growing part of the city on a major community transit and transportation corridor. ◼
“An attractive, colourful and beautifully detailed design that works on all four sides of the site, the back is as nice as the front.”
—2011 City of Ottawa Urban Design Awards